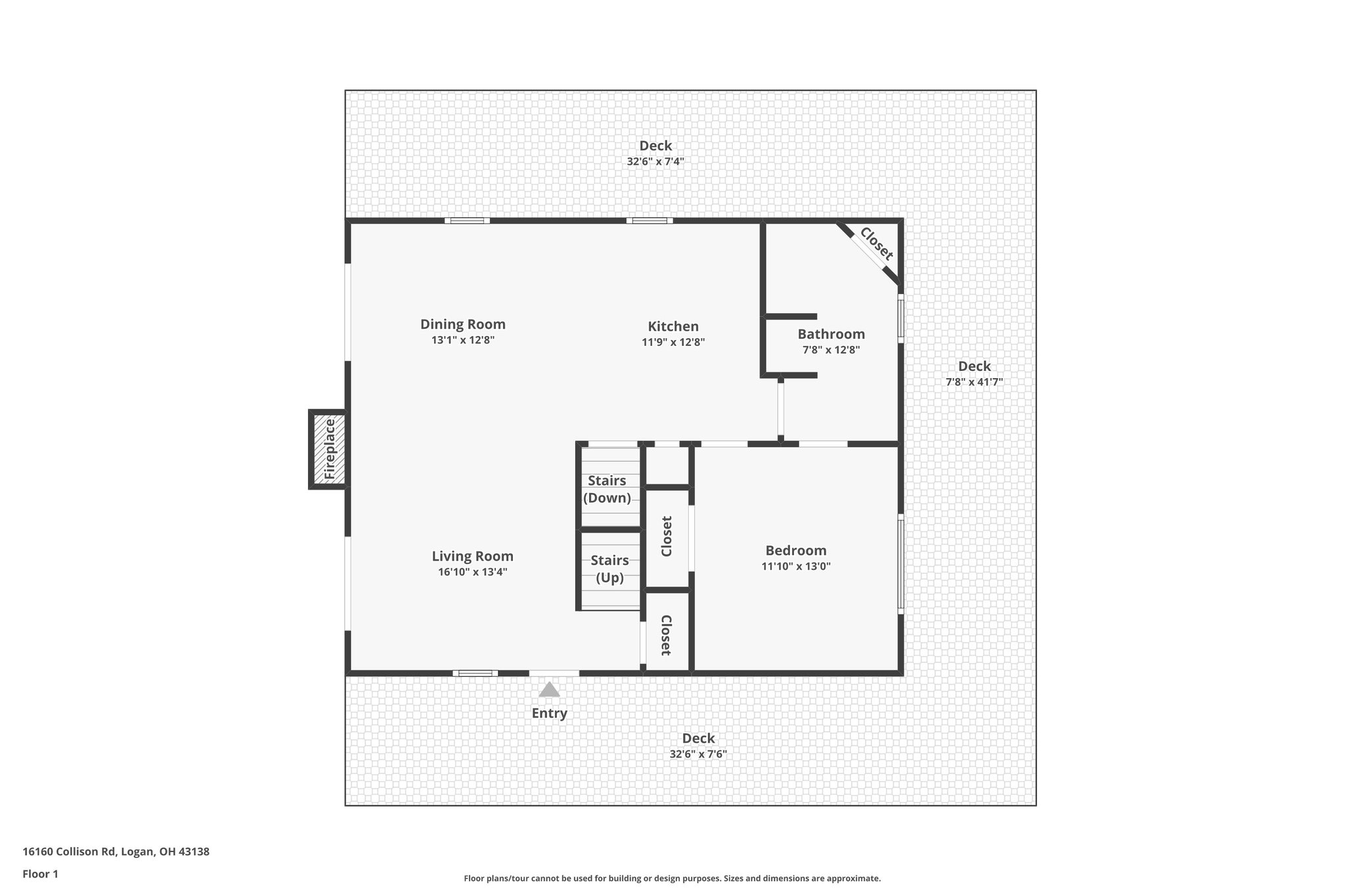
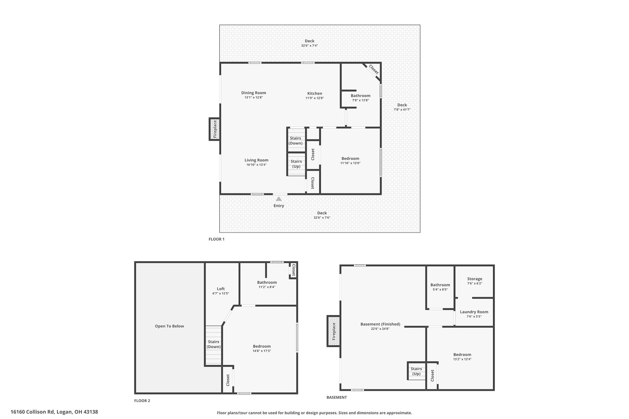
16160 Collison Road, Logan, OH 43138
Toggle Navigation
Floor Plans
3D Tour
Map
Images
Floor Plans
Slideshow
Photo Grid
Hide
Previous
Next
3D Tour